Save
Ask
Tour
Hide
$499,900
1 Day On Site
967 JEFFREY DRIVESOUTHAMPTON, PA 18966
For Sale|Single Family Residence|Active
3
Beds
2
Total Baths
1
Full Bath
1
Partial Bath
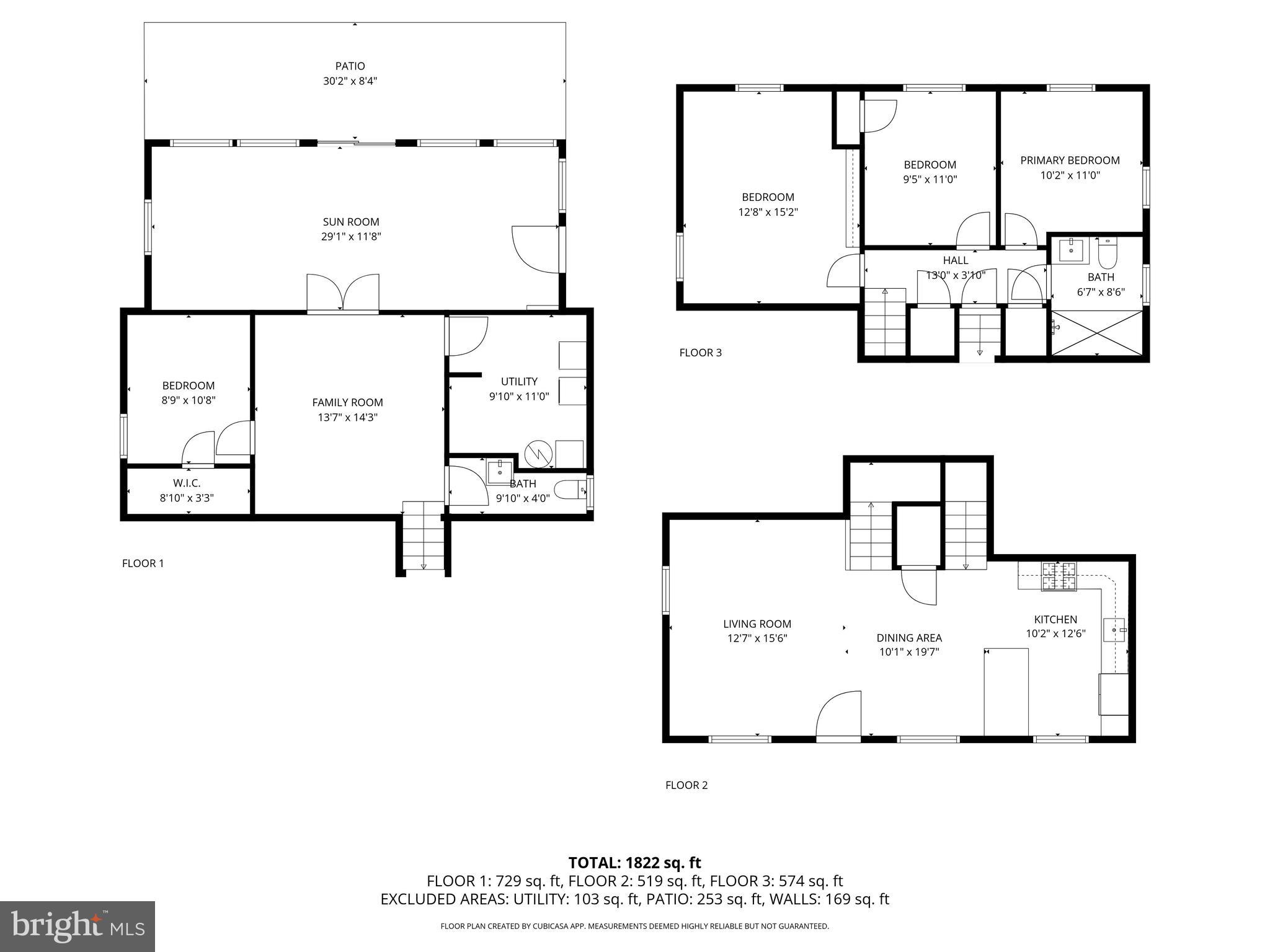
1,822
SqFt
$274
/SqFt
1961
Built
Subdivision:
LATIMER FARMS
County:
BUCKS
Listing courtesy of RE/MAX Properties - Newtown
Call Now: 215-382-7368
Is this the listing for you? We can help make it yours.
215-382-7368



Save
Ask
Tour
Hide
Mortgage Calculator
Monthly Payment (Est.)
$2,281Calculator powered by Showcase IDX, a Constellation1 Company. Copyright ©2025 Information is deemed reliable but not guaranteed.
Amazing Split Level house completely renovated. The upper level room is currently used as an office but you could use it as a 4th bedroom. You have to see all the upgrades including a Modern Kitchen, New Bathrooms, New Roof a New Sunroom that is huge and overlooks the fully fenced yard. This is a great location with a New Heater, A/C, New Hot water Heater and most of the windows have been replaced definitely move-in and enjoy this great home. Very convenient to some great shopping areas and the PA Turnpike is close for commuters.
Save
Ask
Tour
Hide
Listing Snapshot
Price
$499,900
Days On Site
1 Day
Bedrooms
3
Inside Area (SqFt)
1,822 sqft
Total Baths
2
Full Baths
1
Partial Baths
1
Lot Size
0.24 Acres
Year Built
1961
MLS® Number
PABU2107538
Status
Active
Property Tax
$5,848
HOA/Condo/Coop Fees
N/A
Sq Ft Source
Estimated
Friends & Family
Recent Activity
yesterday | Listing updated with changes from the MLS® | |
yesterday | Listing first seen on site |
General Features
Acres
0.24
Carport
1
Cross Street
CUSHMORE
Foundation
Slab
Levels
Three Or More
Parking
AsphaltDrivewayAttached CarportAttached
Parking Spaces
4
Property Sub Type
Single Family Residence
Sewer
Public Sewer
Special Circumstances
Standard
SqFt Above
1822
SqFt Total
1822
Style
Split Level
Utilities
Cable Available
Water Source
Public
Zoning
R3
Interior Features
Appliances
OvenDishwasherMicrowaveRefrigerator
Cooling
Central AirElectric
Electric
100 Amp Service
Heating
Natural GasForced Air
Interior
Eat-in Kitchen
Laundry Features
Laundry RoomLower Level
Bathroom 1
Bathroom 2
Bedroom 2
Bedroom 3
Dimensions - 0 X 0
Dining Room
Dimensions - 0 X 0Level - Main
Family Room
Dimensions - 0 X 0
Kitchen
Dimensions - 0 X 0Level - Main
Laundry
Dimensions - 0 X 0
Living Room
Dimensions - 0 X 0Level - Main
Office
Primary Bedroom
Sun/Florida Room
Save
Ask
Tour
Hide
Exterior Features
Construction Details
Frame
Fencing
Fenced
Lot Features
Front YardBack Yard
Pool Features
None
Roof
Shingle
Community Features
Community Features
Street Lights
MLS Area
Upper Southampton Twp (10148)
School District
CENTENNIAL
Schools
School District
CENTENNIAL
Elementary School
Unknown
Middle School
Unknown
High School
Unknown
Listing courtesy of RE/MAX Properties - Newtown
The real estate listing information is provided by Bright MLS is for the consumer's personal, non-commercial use and may not be used for any purpose other than to identify prospective properties consumer may be interested in purchasing. Any information relating to real estate for sale or lease referenced on this web site comes from the Internet Data Exchange (IDX) program of the Bright MLS. This web site references real estate listing(s) held by a brokerage firm other than the broker and/or agent who owns this web site. The accuracy of all information is deemed reliable but not guaranteed and should be personally verified through personal inspection by and/or with the appropriate professionals. Properties in listings may have been sold or may no longer be available. The data contained herein is copyrighted by Bright MLS and is protected by all applicable copyright laws. Any unauthorized collection or dissemination of this information is in violation of copyright laws and is strictly prohibited. Copyright © 2020 Bright MLS. All rights reserved.

The real estate listing information is provided by Bright MLS is for the consumer's personal, non-commercial use and may not be used for any purpose other than to identify prospective properties consumer may be interested in purchasing. Any information relating to real estate for sale or lease referenced on this web site comes from the Internet Data Exchange (IDX) program of the Bright MLS. This web site references real estate listing(s) held by a brokerage firm other than the broker and/or agent who owns this web site. The accuracy of all information is deemed reliable but not guaranteed and should be personally verified through personal inspection by and/or with the appropriate professionals. Properties in listings may have been sold or may no longer be available. The data contained herein is copyrighted by Bright MLS and is protected by all applicable copyright laws. Any unauthorized collection or dissemination of this information is in violation of copyright laws and is strictly prohibited. Copyright © 2020 Bright MLS. All rights reserved.
Neighborhood & Commute
Source: Walkscore
Save
Ask
Tour
Hide
Did you know? You can invite friends and family to your search. They can join your search, rate and discuss listings with you.